Herverkoop » Commercial » Los Montesinos &r
Excelencia Real Estate

Los Montesinos · Los Montesinos Commercial · Herverkoop

€106.000
€106.000

Los Montesinos · Los Montesinos Commercial · Herverkoop

  • 182m2

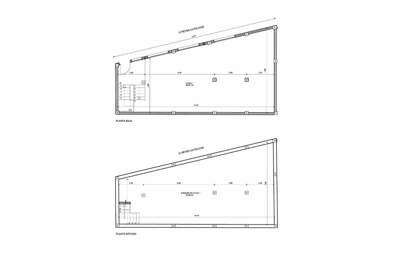
Beschrijving

Gloednieuwe commerciële unit te koop in Los Montesinos. Het wordt verkocht zoals het is, in basisvorm, klaar voor u om af te werken in de stijl die u precies wilt. Er is ook de mogelijkheid om deze eenheid om te bouwen tot een zeer ruime woning om in te wonen. De hoofdentree is iets verhoogd en er zijn vier grote ramen aan de voorzijde van de unit, waardoor er veel natuurlijk daglicht binnenkomt. De begane grond van het pand is 97m2, wat een geweldige maat is, of u het nu voor commerciële of bewoonbare doeleinden wilt gebruiken. Net bij de ingang is een trap die naar beneden leidt naar de semi-kelder. De semi-kelder heeft een oppervlakte van 85m2 en kan gebruikt worden voor opslag, maar kan ook als deel van het huis worden gebruikt indien gewenst voor bewoonbaar gebruik. Er zijn slanke ramen over het bovenste gedeelte die natuurlijk daglicht binnenlaten, zoals u kunt zien op de buitenfoto's. Een pand met veel potentieel, ongeacht het gebruik dat u van plan bent toe te passen!

Kenmerken

ImageGebouwd: 182m2
ImageVerbruiksefficiëntie: X
ImageStorage room
ImageUnfurnished

Plaats

Vraag voor informatie

Verantwoordelijke voor gegevensverwerking: Matthys Inversiones SL, Doel van de verwerking: Beheer en controle van de via de website van Real Estate Services aangeboden diensten, verzenden van informatie via nieuwsbrieven en andere kanalen. Wettelijke basis: Toestemming. Ontvangers: Gegevens zullen niet worden overgedragen, behalve voor boekhoudkundige doeleinden. Rechten van betrokkenen: Toegang tot, rectificatie en verwijdering van gegevens, verzoek om gegevensportabiliteit, bezwaar tegen verwerking en verzoek om beperking van verwerking. Bron van de gegevens: De betrokkene zelf. Aanvullende informatie: Aanvullende en gedetailleerde informatie over gegevensbescherming kan Hier worden geraadpleegd.
WhatsApp